반응형


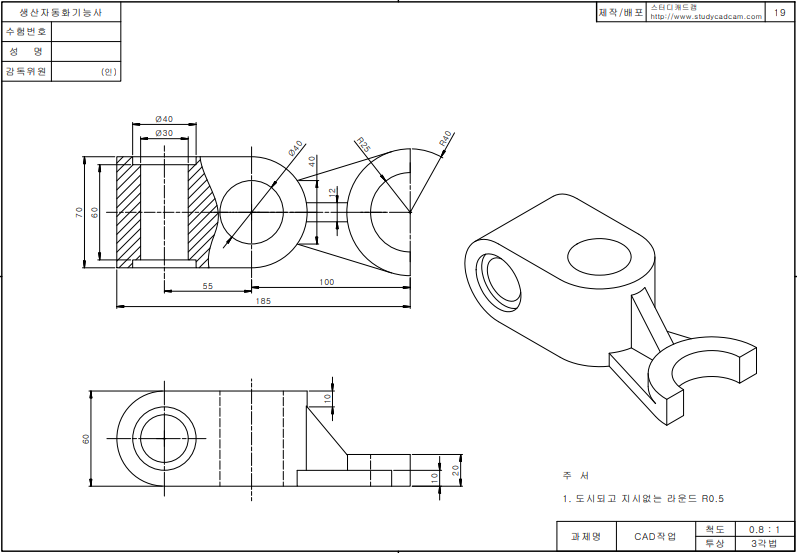
윗면에서 아래와 같이 전체적인 스케치를 하였다.

중간에 원과 원을 연결하는 수평선을 그을려고 하는데
'치수 중첩 정의'가 되었다고 노란색으로 표시되고 있어서
부득이 세로로 6정도 선을 긋고 수평선을 그었다.



파란색 점들을 클릭해서 고정으로 구속조건을 부여했다.
그런데 아래처럼 구속조건을 부여하지 않아도 된다.
잘 안되면 그냥 진행한다.






여기서 실수가 있는데
오른쪽 원모양은 도면을 보면 반쪽 형상으로 되어 있어야 한다.
수정을 해본다.


정면에서 보면 보강대 쪽 작업이 남았다.

기준면인 '정면'을 보이기하고 스케치 작업을 한다.

위에서 아래쪽으로 10만큼 선을 긋고 아래와 같이 보강대가 될 형상을
'선'으로 그린다.


스케치가 되었으면 10만큼 수직으로 그은 선을 삭제해주어야
형상작업을 할 수 있다.



왼쪽 형상 부분을 작업한다.
필렛을 30만큼 주면 원형 형상이 될 것 같다.




방금 전에 사용했던 스케치가 보이지 않으면
선택 - 보이기를 한다.

이제 반대로 간다.
이전의 스케치는 그대로 보이고 있다.
반드시 이쪽 면을 잡고 스케치를 눌러주어야 한다.

보이는 두 원을 잡고 요소변환을 누른다.
그대로 복사가 된다.


스케치 종료를 하고 반대편 스케치도 '숨기기'를 해준다.
그리고 돌출컷을 5만큼 해준다.

완성된 모델링

'솔리드웍스 > 실습(생자기능사CAD_45문제)' 카테고리의 다른 글
| 생산자동화기능사 CAD작업(17번) 모델링 (0) | 2020.05.11 |
|---|---|
| 생산자동화기능사 CAD작업(18번) 모델링 (0) | 2020.05.11 |
| 생산자동화기능사 CAD작업(20번) 모델링 (0) | 2020.05.11 |
| 생산자동화기능사 CAD작업(21번) 모델링 (0) | 2020.05.11 |
| 생산자동화기능사 CAD작업(22번) 모델링 (0) | 2020.05.11 |