
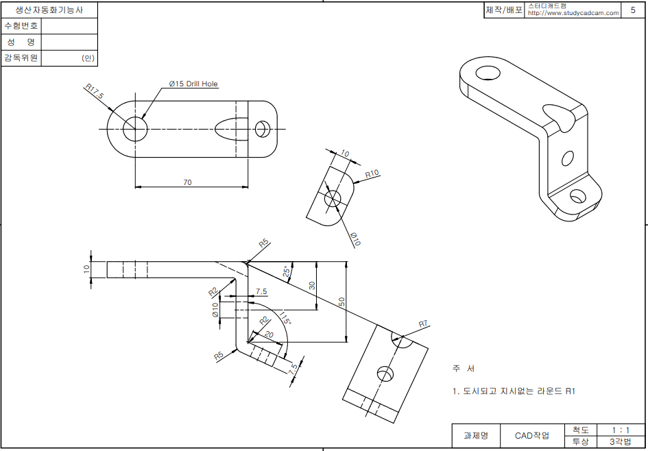
초기 기준면(데이텀)을 정면으로 하고 아래와 같이 스케치 한다.

스케치 종료 후 돌출보스를 35만큼 준다.

왼쪽 모서리 두 곳에 필렛 17.5를 준다.
필렛 처리 후에 원을 스케치하는 것이 용이하다.

윗면을 기준으로 스케치를 한다.

드릴 지름 15인 구멍 작업인데
점을 찍어도 되는데 원을 스케치 해본다.

구멍가공마법사를 클릭해서 아래와 같이 설정한다.

'위치'탭에서 3D Sketch 클릭해서 구멍을 뚫어준다.

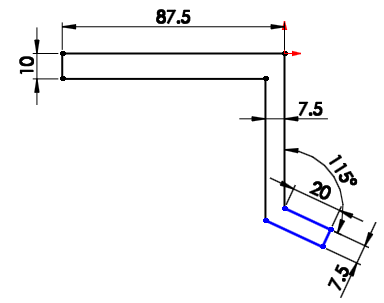
꺽어지는 곳의 파인 형상작업을 한다.
각도가 있는 원통형상으로 컷을 해주는 형상이다.
기울어진 원통형상 작업을 위해
직각인 기준면을 만들어야 한다.
참조형상-기준면을 클릭하고
제1참조는 윗면(분홍색)을 클릭하고 각도를 25도로 한다.
제2참조를 모서리 선을 클릭하면 아래의 기준면이 만들어진다.

만들어진 기준면의 방향으로 컷을 해줄 원통형상이 지나간다.
이제 이 기준면과 직각인 기준면을 만들고 원을 그려주어야 한다.
'참조형상-기준면'을 선택하고 평면1(분홍색)을 클릭한다.
그리고 직각을 눌러준다.
모서리선을 눌러 새로 생성된 기준면(평면2)을 직각으로 새운다.


이제 새로 생성된 평면2에 원을 그려서 관통을 시키면 원하는 형상이 나올 것이다.
''평면2'를 클릭 - 스케치'를 클릭하면 아래처럼 스케치 화면이 반대로 되는 경우가 있다.

이럴때는 '스페이스'바를 누르거나
아래의 '뷰방향' 아이콘을 눌러서 원하는 방향으로 다시 잡는다.


작업 할 스케치면을 잡고 원을 그려주는데
중심이 잘 안잡히면 아래와 같이 가로 17.5mm 직선을 긋고
그 끝에 지름 14인 원을 그린다. 이때의 원은 정원이 아닌 비대칭으로 보인다.

스케치 한 화면을 돌려보면 정원이 잘 그려져 있다.
돌출컷을 해준다. 방향은 중간평면으로 한다.


돌출컷 완료 후에 필렛을 5만큼 적용한다.

자, 이제 오른쪽 수직인 면을 스케치 면으로 잡는다.

수직인 중심선을 긋고 중심선 상에 지름 10인 원을 그려준다.
그리고 윗면과 원과의 거리를 30만큼 준다.
그런데 윗면에서 수직인 면의 길이가 50이어야 하는데 60.92가 나왔다.
현재 작업한 것을 취소하고 처음에 스케치한 작업으로 돌아가보자.

처음 작업했던 스케치를 클릭하면 오른쪽에 오류가 발생한 스케치가 보인다.
'스케치 편집'으로 들어간다.

수직 치수에 50을 적용시킨다.

스케치 작업이 완료되면 '스케치 종료'를 누르거나
화면 오른쪽 상단의 '완료' 아이콘을 누르면 된다.

작업을 하다보면 이처럼 오류가 발생한다.
그러면 침착하게 문제되는 스케치를 찾아서 '스케치편집'으로 수정을 하면 된다.
이제 수직면에서 스케치 작업을 한다.


스케치 종료 후에 '돌출컷 - 관통'을 시켜준다.

수직면 형상 작업이 완료되면 이제 오른쪽 끝부분을 스케치 작업을 한다.
원을 스케치한 후에 관통작업을 한다.



관통작업 후에 모서리 두 곳에 필렛 10을 적용하고 모델링을 완성한다.

완성된 모델링

솔리드웍스 작업파일
'솔리드웍스 > 실습(생자기능사CAD_45문제)' 카테고리의 다른 글
| 생산자동화기능사 CAD작업(03번) 모델링 (0) | 2020.06.02 |
|---|---|
| 생산자동화기능사 CAD작업(04번) 모델링 (0) | 2020.06.02 |
| 생산자동화기능사 CAD작업(06번) 모델링 (0) | 2020.06.02 |
| 생산자동화기능사 CAD작업(07번) 모델링 (0) | 2020.06.02 |
| 생산자동화기능사 CAD작업(08번) 모델링 (0) | 2020.06.02 |
