
먼저 입체도를 2개를 만들어야 한다.
오른쪽 입체도를 모델링하고 뷰를 뽑을 수 있게 한다.
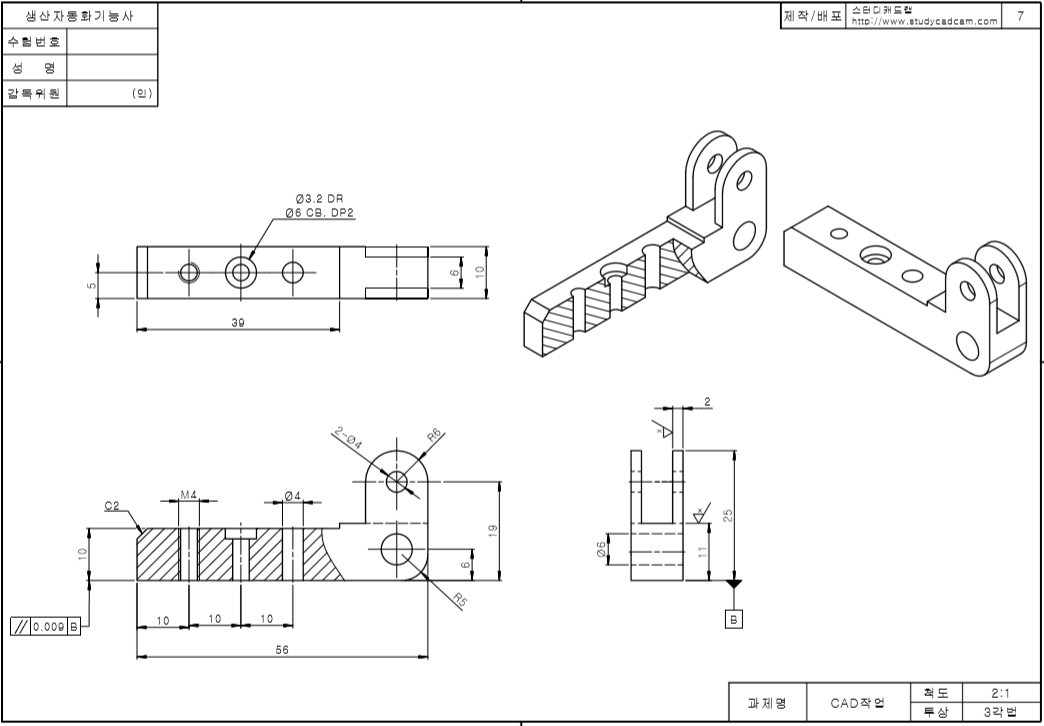
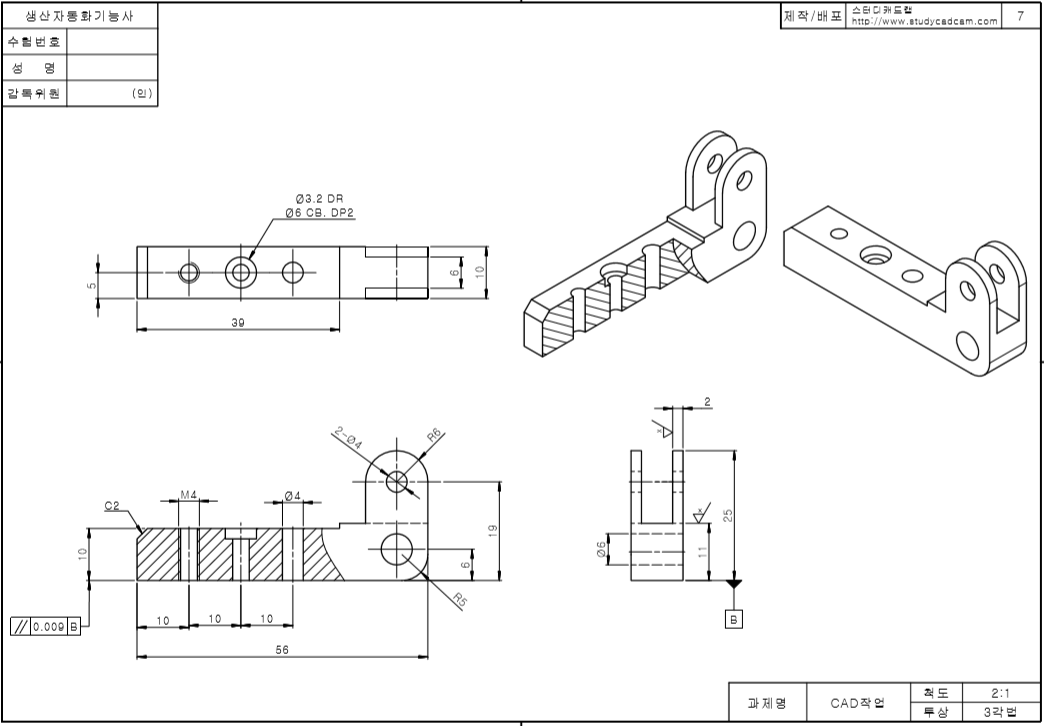
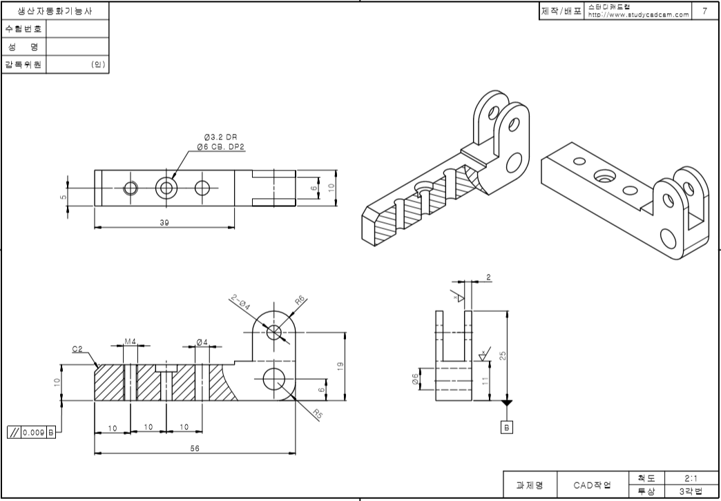
정면에서 아래와 같이 스케치작업을 한다.

필렛을 위에 두 곳은 6으로 아래는 5mm를 준다.

윗 부분을 관통시키기 위해 사각형을 위치에 맞게 스케치한다.

관통을 시킨다.

위 부분의 구멍을 뚫는다.
'구멍가공 마법사'는 스케치를 먼저 하는 것이 쉽다.
윗면 스케치에서 아래와 같이 스케치를 하는데 원의 치수는 설정하지 않는다.

'구멍가공 마법사'를 실행하고
직선 탭 - KS - 탭구멍 - M4를 설정,
마침조건은 관통을 체크한다.


두 번째 구멍은 카운터 보어 홀이다.
작은 구멍은 지름 3.2로 드릴 뚫기를 하고
큰 구멍은 지름 6으로 카운터 보어 해주어야 한다.
큰 구멍의 깊이는 2이다.

'구멍가공 마법사'를 실행하고
카운터보어 - KS - 구멍붙이 볼트 - 사용자 정의 크기,
마침조건은 관통을 체크한다.



구멍붙이 볼트 (설비보전)
마지막은 드릴구멍 4를 뚫어준다. '구멍가공 마법사'를 실행하고
구멍 - KS - 드릴 크기 - 구멍 크기 4mm, 마침조건은 관통을 체크한다.
원을 스케치해서 돌출컷으로 해도 된다.

다음은 오른쪽 부분의 구멍 두 곳을 뚫어주어야 한다.
아래와 같이 스케치 하고 관통시켜준다.

[완성된 모델링]

[솔리드웍스 작업파일]
모델링 반쪽 자르기


이전 모델링 파일을 다른 이름으로 저장하고 작업한다.
단면으로 표현할 부분을 스플라인으로 그린다.
'돌출 컷'으로 반(5mm)만 자른다.

[반쪽 모델링 완성]

[솔리드웍스 작업파일]
'솔리드웍스 > 실습(생자기능사CAD_45문제)' 카테고리의 다른 글
| 생산자동화기능사 CAD작업(05번) 모델링 (0) | 2020.06.02 |
|---|---|
| 생산자동화기능사 CAD작업(06번) 모델링 (0) | 2020.06.02 |
| 생산자동화기능사 CAD작업(08번) 모델링 (0) | 2020.06.02 |
| 생산자동화기능사 CAD작업(09번) 모델링 (0) | 2020.06.02 |
| 생산자동화기능사 CAD작업(10번) 모델링 (0) | 2020.06.02 |
