반응형


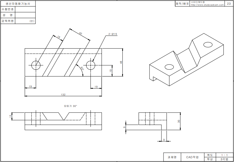
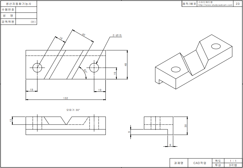
윗면을 초기 데이텀(기준)으로 잡고 스케치를 한다.

원 옆에 19만큼 떨어진 곳에 선을 긋는다. 각도 60도로 한다.

사선에 오프셋으로 40을 준고 선을 생성한다.
필요없는 부분은 잘라내기하고 길이가 부족한 부분은 '요소늘리기'를 해준다.

스케치 종료 후 돌출 보스를 한다.
방향은 아래쪽, 깊이는 21(30-9)만큼 준다.


스케치를 마치고 돌출컷을 해준다.
아래로 13만큼 , 안쪽 구배를 30도로 준다.


정면에서 본 형상이다.
도면과 같게 나왔다.

위처럼 평행사변을 크게 만들어 주지 않으면
위쪽과 아래쪽이 뚫려야 하는 형상이 그대로 남아 있게 된다.

형상을 뒤로 돌려 아래의 모양이 되로록 배치한다.
뒷면으로 가서 '스케치 - 수직되게' 로 하면 위아래가 바뀐다.
일단 이 모양으로 만들고

스페이스바를 눌러 선택을 해준다.
이렇게 하면 모양이 뒤집혀지지 않는다.

돌출될 부분을 사각형으로 스케치한다.

돌출보스를 9만큼 준다.

완성된 모델링은 도면과는 조금 다르다.
이렇게 좌표가 바뀐 도면은 수정이 안된다고 한다.
스페이스바를 누르고 돌려가며 등각도와 같은 것을 선택한다.

이런 상태에서 저장을 한다.
저장화면은 솔리드웍스 도면화작업시 등각도와는 별개로
'현재면'(현재 방향으로 저장된 등각도)으로 불러올 수 있다.
완성된 모델링

솔리드웍스 모델링 파일
'솔리드웍스 > 실습(생자기능사CAD_45문제)' 카테고리의 다른 글
| 생산자동화기능사 CAD작업(21번) 모델링 (0) | 2020.05.11 |
|---|---|
| 생산자동화기능사 CAD작업(22번) 모델링 (0) | 2020.05.11 |
| 생산자동화기능사 CAD작업(24번) 모델링 (0) | 2020.05.11 |
| 생산자동화기능사 CAD작업(25번) 모델링 (0) | 2020.05.11 |
| 생산자동화기능사 CAD작업(26번) 모델링 (0) | 2020.05.11 |