반응형
반쪽을 그려서 회전을 시킨다음 짤라내기 하면 된다.
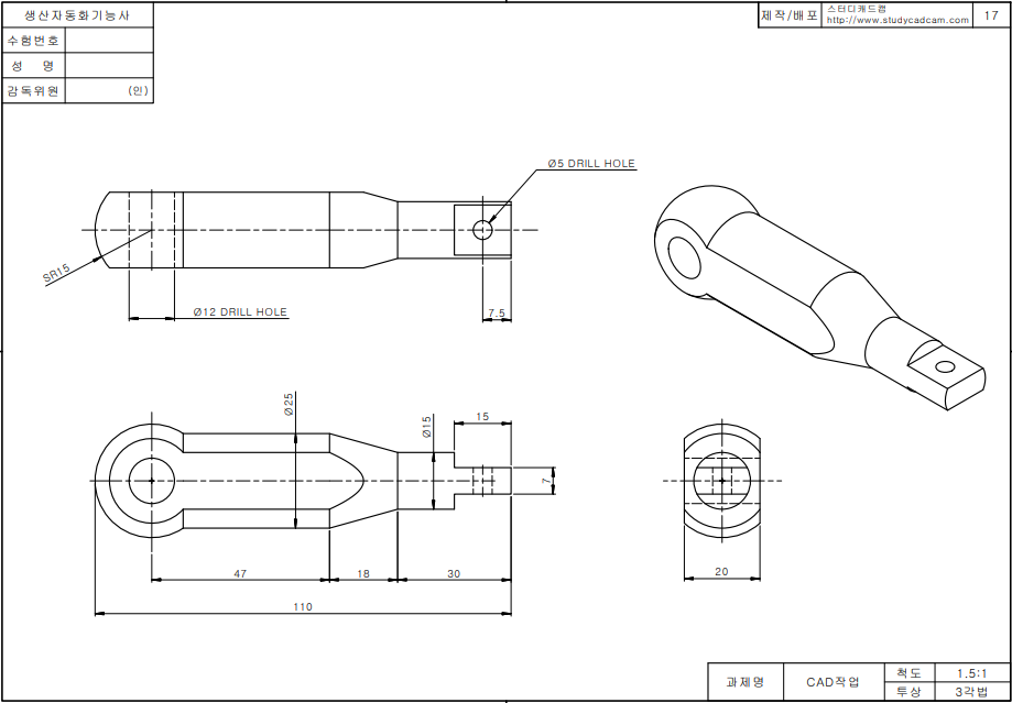
정면에서 스케치 작업을 한다.
여기서 주의 해야 할 부분은 오른쪽 부분인데
정면도의 오른쪽 모습은 회전하고 짤려진 형태이다.
그러므로 회전체의 처음 형상은 아래와 같이 되어야 한다.
필요없는 스케치는 잘라내기 하고 스케치 종료 후 회전보스를 눌러준다.
만약 아래와 같은 메시지가 뜨면 "예"를 눌러준다.
개곡선을 폐곡선으로 만들어 회전시켜주게 된다.
앞부분을 자르게 위해 앞면 스케치로 들어간다.
사각형을 아래와 같이 동적대칭복사로 그려준다.
사각형 사이의 치수를 7로 한다.
사각형 높이는 원을 벗어나는 높이로 준다.
스케치 종료하고 돌출컷 15로 한다.
이번에는 세로방향으로 양쪽을 잘라주어야 한다.
다시 오른쪽 면에서 스케치 작업을 한다.
동적대칭복사를 이용해서 사각형을 그리고 사이의 간격을 20으로 한다.
나머지 치수는 필요치 않다.
스케치 종료 후 돌출컷을 120정도로 해준다.
마지막으로 왼쪽과 오른쪽에 원으로 관통시켜준다.
[완성 모델링]
[작업 파일]
'솔리드웍스 > 따라하기 (study cam)' 카테고리의 다른 글
생산자동화 기능사 - 과제11번 모델링하기 (cad study-솔리드웍스 ) (0) | 2020.03.20 |
---|---|
생산자동화 기능사 - 과제15번 모델링하기 (cad study-솔리드웍스 ) (0) | 2020.03.19 |
생산자동화 기능사 - 과제16번 모델링하기 (cad study-솔리드웍스 ) (0) | 2020.03.19 |
생산자동화 기능사 - 과제8번 모델링 뷰꺼내기 (cad study-솔리드웍스 ) (0) | 2020.03.19 |
생산자동화 기능사 - 과제8번 모델링하기 (cad study-솔리드웍스 ) (2) | 2020.03.18 |