
주의) 게시물 관련 유투브 동영상의 제목은 '솔리드웍스 생산자동화기능사 CAD준비 21번 모델링하기'이다.
동영상의 번호(21번)와 과제 번호(8번)가 맞지 않는 것 같다.

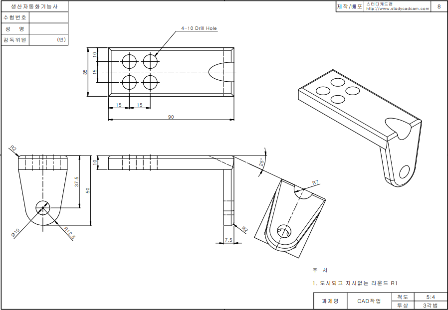
정면도에서 'ㄱ'자형을 먼저 만들면 모델링이 잘 안된다.
가로 세로를 따로 만든다.
먼저 가로부분을 만든다.
스케치 종료 후 돌출보스를 35만큼 준다.

우측으로 가서 세로 부분을 아래와 같이 스케치한다.

돌출을 안쪽으로 7.5mm로 해준다.

윗면 왼쪽편으로 가서 아래와 같이 원을 스케치.

선형패턴으로 원 4개를 만든다.
원을 클릭하고 '선형스케치패턴'을 클릭한다.
X축 방향 15만큼 갯수2를 준 뒤에
Y축 방향은 먼저 '방향 2'를 클릭하고 왼쪽 모서리 선을 클릭해준다.
(직접 원 4개를 치수에 맞게 그려도 된다)

모서리 선 클릭 후 패턴 수를 입력해야 치수가 활성화된다.

스케치 후에 관통을 시킨다.

오른쪽 위쪽 모서리 부분을 원 형태의 형상으로 돌출 컷을 해야 한다.
먼저 기준면을 만든다. '참조형상-기준면'클릭, 모서리선 클릭, 윗면 클릭하면
아래와 같이 기준면이 만들어진다.
이 기준면을 중심으로 원 형상으로 돌출컷이 될것이다.

'평면1'에 원형상의 중심이 지나가게 하기 위해
'평면1'에 수직인 면을 만든다.
'평면1'이 선택된 상태에서 '참조형상-기준면' 클릭한다.

'평면2'의 아래 끝쪽 중앙에 원을 그린다.

다음 돌출컷을 양쪽 방향으로 해준다.
돌출 후 '평면'은 숨기기 처리한다.

필렛을 아래와 같이 2mm를 준다.

[완성 모델링]

[작업 파일]
이 게시물의 내용은
유투브 채널 'CAD STUDY'의 동영상을 따라하며 정리하였습니다.
https://www.youtube.com/channel/UCRYkzvpZm9tOJ0F0ppu-9MQ
추가 자료는 네이버카페 "파워아카데미"를 참고하였습니다.
'솔리드웍스 > 따라하기 (study cam)' 카테고리의 다른 글
| 생산자동화 기능사 - 과제16번 모델링하기 (cad study-솔리드웍스 ) (0) | 2020.03.19 |
|---|---|
| 생산자동화 기능사 - 과제8번 모델링 뷰꺼내기 (cad study-솔리드웍스 ) (0) | 2020.03.19 |
| 생산자동화 기능사 - 과제7번 모델링 뷰꺼내기 (cad study-솔리드웍스 ) (0) | 2020.03.18 |
| 생산자동화 기능사 - 과제7번 모델링 반쪽 자르기 (cad study-솔리드웍스 ) (0) | 2020.03.18 |
| 생산자동화 기능사 - 과제7번 모델링 (cad study-솔리드웍스 ) (0) | 2020.03.18 |