

먼저 입체도를 2개를 만들어야 한다.
오른쪽 입체도를 모델링하고 뷰를 뽑을 수 있게 한다.
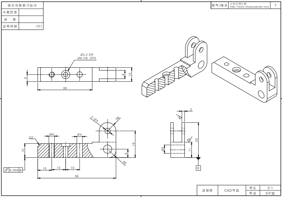
정면에서 아래와 같이 스케치작업을 한다.

필렛을 위에 두 곳은 6으로 아래는 5mm를 준다.

윗 부분을 관통시키기 위해 사각형을 위치에 맞게 스케치한다.

관통을 시킨다.

위 부분의 구멍을 뚫는다.
'구멍가공 마법사'는 스케치를 먼저 하는 것이 쉽다.
윗면 스케치에서 아래와 같이 스케치를 하는데 원의 치수는 설정하지 않는다.

'구멍가공 마법사'를 실행하고
직선 탭 - KS - 탭구멍 - M4를 설정,
마침조건은 관통을 체크한다.


두 번째 구멍은 카운터 보어 홀이다.
작은 구멍은 지름 3.2로 드릴 뚫기를 하고
큰 구멍은 지름 6으로 카운터 보어 해주어야 한다.
큰 구멍의 깊이는 2이다.

'구멍가공 마법사'를 실행하고
카운터보어 - KS - 구멍붙이 볼트 - 사용자 정의 크기,
마침조건은 관통을 체크한다.



마지막은 드릴구멍 4를 뚫어준다. '구멍가공 마법사'를 실행하고
구멍 - KS - 드릴 크기 - 구멍 크기 4mm, 마침조건은 관통을 체크한다.
원을 스케치해서 돌출컷으로 해도 된다.

다음은 오른쪽 부분의 구멍 두 곳을 뚫어주어야 한다.
아래와 같이 스케치 하고 관통시켜준다.

[완성 도면]

[작업 파일]
이 게시물의 내용은
유투브 채널 'CAD STUDY'의 동영상을 따라하며 정리하였습니다.
https://www.youtube.com/channel/UCRYkzvpZm9tOJ0F0ppu-9MQ
추가 자료는 네이버카페 "파워아카데미"를 참고하였습니다.
'솔리드웍스 > 따라하기 (study cam)' 카테고리의 다른 글
| 생산자동화 기능사 - 과제7번 모델링 뷰꺼내기 (cad study-솔리드웍스 ) (0) | 2020.03.18 |
|---|---|
| 생산자동화 기능사 - 과제7번 모델링 반쪽 자르기 (cad study-솔리드웍스 ) (0) | 2020.03.18 |
| 생산자동화 기능사 - 아이스트레이 만들기 (cad study-솔리드웍스 ) (0) | 2020.03.18 |
| 생산자동화 기능사 - 스윕컷 응용 나사만들기 (cad study-솔리드웍스 ) (0) | 2020.03.17 |
| 생산자동화 기능사 - 경사가 있는 모델링 (cad study-솔리드웍스 ) (0) | 2020.03.17 |