생산자동화기능사 CAD작업(14번) 모델링


정면을 초기 작업 기준면(데이텀)으로 잡는다.
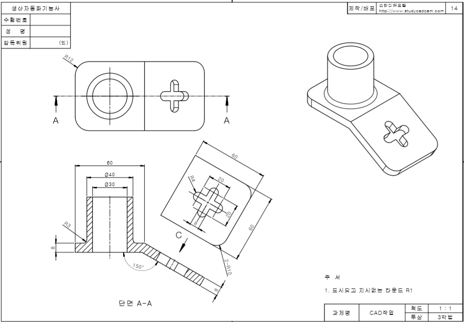
아래 도면의 적색 선 부분의 형상을 스케치한다.
이번에는 폐곡선 형태를 만들지 않고 직선으로만 돌출을 시켜본다.


스케치 종료 후 돌출보스를 시켜준다.
이때 방향1과 얇은 피처(이미 체크되어 있음)를 이용한다.
선을 이용해서 두께를 만들경우 '얇은 피처'를 이용한다.
'얇은 피처'는 기능사 수준에서는 잘 쓰이지 않으나 이번 한 번만 사용해 본다.


왼쪽 위 면을 잡고 스케치를 한다.
중심선을 긋고 지름 30, 지름 40인 원을 스케치한다.

안쪽 원은 돌출컷, 바깥쪽 원은 돌출보스를 해준다.

돌출컷을 하면 이전의 스케치가 보이지 않는다.
스케치를 디자인 트리에서 찾아서 보이기를 해준다.

스케치가 보이면 아래와 같이 작은 원, 큰 원을 Ctrl + 클릭해서 모두 선택 해준다.

돌출 보스를 40만큼 해준다.

돌출컷과 돌출보스 작업이 끝나면 '보이기'를 했던 스케치는 '숨기기' 해준다.
이어서 왼쪽 형상의 모서리에 필렛 처리(R12)를 해준다.

원통과 면의 접하는 부분은 필렛을 3만큼 적용한다.

오른쪽 면 위에 돌출 컷을 위한 스케치를 해준다.

전체적인 형상 스케치가 끝났으면 안쪽의 선들은 잘라내기를 해준다.
그리고 제일 처음 스케치했던 선이 맨 아래쪽에 보이고 있다.
디자인 트리에서 찾아서 숨기기를 해준다.


스케치 종료 후에 돌출컷을 해준다.

그리고 오른쪽 모서리 부분에 필렛 10을 적용하고 모델링을 완성한다.

완성된 모델링

솔리드웍스 작업파일