생자 실기 solidworks 10번 모델링 + 도면 작업

1. 솔리드 작업

스케치를 중심에서 회전하는 것과
중심선 위쪽에 회전하는 것 둘로 분리해서 작업한다.
정면도에서 아래와 같이 스케치 한다.
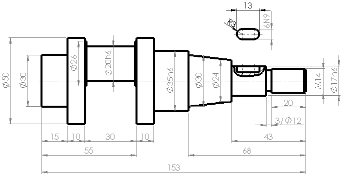
지름이 되는 치수를 표시할 때는 중간에 중심선(보조선)을 그어 놓고 한다.

스케치 종료후 '회전보스'로 회전시킨다.

중심선 위쪽 회전체를 스케치한다.
중심선 위로 10만큼 떨어진 곳에 중심선을 하나 만든다.
이 중심선을 기준으로 나머지를 스케치 한다.

스케치 종료 후 회전보스를 적용한다.

다음은 키홈 작업을 해야 한다.
화면을 정면으로 놓고 '참조형상-기준면'을 누른다.
참조1을 '우측면' 선택, 거리는 8.5(17/2)로 한다.

만들어진 기준면에 키 홈을 스케치하고 돌출컷을 해준다.
키 홈의 깊이는 3.5mm로 한다.
앞 부분의 필렛을 1로 준다.


[작업 파일]
2. 도면 작업
A3크기 (420 X 297) 시트를 작성한다.
윤곽선을 그리면 반듯이 고정을 시켜준다.

작업중에 신호등 표시가 들어오면 상단의 신호등(재생성)를 눌러준다.
신호등 -> 변경된 피처를 재생성한다.

시트 편집이 끝나면 오른쪽 위의 버튼을 누른다.
'뷰 레이아웃-모델 뷰' 를 눌러 모델링 파일을 불러온다.
정면 뷰를 꺼내고 등각도를 꺼낸다.
등각도가 원하는 각도가 아니면 회전을 시켜준다.

상하좌우 회전(2D)으로 되지 않는 경우는 '3D 도면뷰'로 조절한다.
그런데 아래방법으로 하면 결과가 저장이 안된다.


다른 방법으로 한다.
파트 모델링을 열고 Ctrl+7을 눌러 등각도로 놓고
원하는 방향으로 회전한 다음 저장을 한다.
그리고 도면작업 시트로 돌아와 오른쪽의 '뷰 팔렛트'에서 해당 모델링을 불러온다.

아래에 여러개의 뷰들이 있는데 '현재' 뷰를 보면
내가 원하는 모양으로 바꾼 형태이다.
이 뷰를 등각도로 사용한다.

'키 홈' 부분이 잘 보인다.

뷰 배치가 끝나면 수치를 입력한다.
일단 '옵션-문서속성-치수'에서 오프셋을 10mm로, 치수 보조선 중앙에 체크
치수 기입을 아래와 같이 한다. 왼쪽부터 입력해 간다.

치수선이 아래와 같으면 수정한다. 왼쪽 '지시선'탭에서 '안쪽으로' 를 누른다.


아래의 치수 3을 변경해준다.
왼쪽 트리에서 '치수 텍스트'를 <DIM>에서



키 홈 부분을 '부분 단면도'로 표시한다.
'뷰 레이아웃-부분단면도'를 누르고 자유곡선으로 영역을 지정하고
'깊이'에 관련된 모서리 선을 클릭한다.
아래에서 파랑색선은 아닌 붉은 선을 클릭해야 한다.

부분단면도를 적용한 모습이다.
단면도 안쪽 부분을 정리를 해 주어야 한다.
홈 부분의 선들을 숨기기 하고


가로로 중심선을 긋고 왼쪽 부터 지름 치수를 입력한다.
지름치수 중에 아래 두 곳 끼워맞춤 치수는
왼쪽 트리의 치수텍스트에서 변경해준다.

h6이므로 헐거움 끼워맞춤이다.

'키 홈'의 양쪽 중심원에 중심선 2개를 그린다.
위쪽으로 떨어져서 키 홈 치수를 기입한다.
6N9이므로 억지 끼워 맞춤이다.

치수 기입이 끝나면 선 두께를 변경해준다.
'옵션-문서속성-선 형식'에서 유형은 실선, 두께를 0.5mm로 한다.
키 홈 부분은 선 두께가 변하지 않아 직접 수정해 주었다. (???)

등각도는 척도 1/2로 조정한다.

[도면 파일]